
Fjord Oak
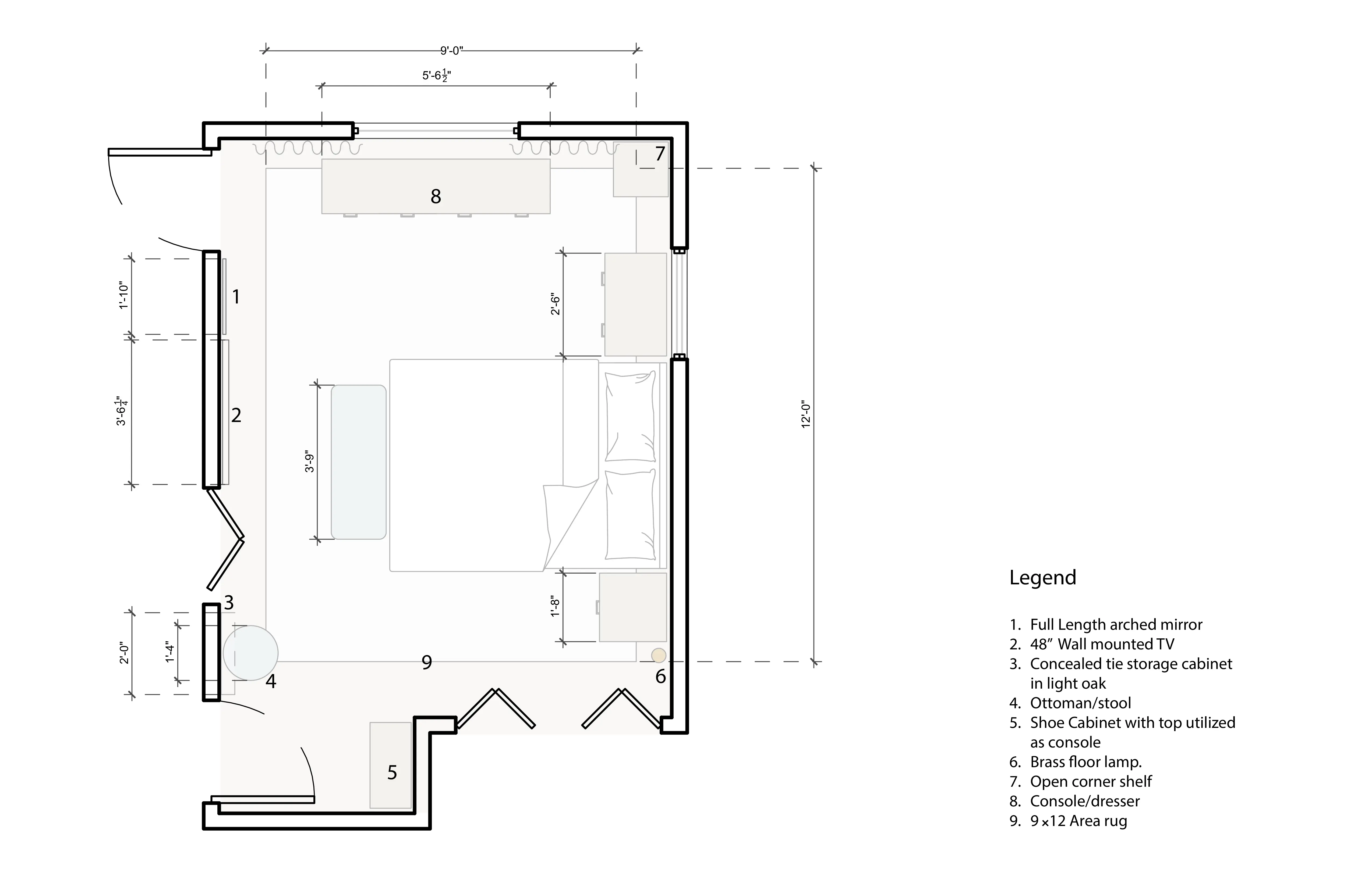
European Farmhouse Style Bedroom: Scematic Design. Softwares used: AutoDesk Revit, Procreate, Adobe Illustrator, and Adobe Photoshop.
Interior Design Scheme
This Interior design schematic plan was envisioned for a couple's bedroom who wanted to convert their bedroom to a calm resting space, were attracted to the European Farmhouse Aesthetic, and wanted the bedroom to maximize storage and funtionality.






